top of page
Aseana Two
Bradco Avenue, 2 Aseana City, Parañaque, 1701 Metro Manila
Property Description
Aseana Two is a 12-storey, 4 elevators, PEZA-accredited Class A office tower in Aseana City, Parañaque, offering about 214,289.78 sqm of gross leasable area with density ratio of 1:6 sqm, 100% backup power, VRF air-conditioning, and 24/7 security.
Property Details
Available Spaces
Property Type
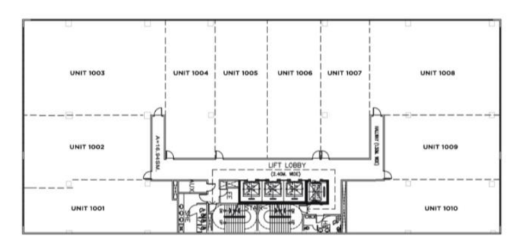
133.09 - 277.26 SQM
Office Space
Back Up Power
Property Status
100%
RFO
AC System
Completion Date
2014
VRF
Floor Plan


1/1
Location
bottom of page




